Buková moderní linka s vestavěnými spotřebiči,5897
- [22.12. 2025]Zmazať/ Upraviť/ Topovať





















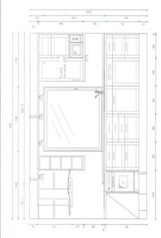
Nabízím k prodeji krásnou moderní bukovou kuchyňskou linku, s vestavěnými spotřebiči.
V ceně je zahrnuto:
Vestavěná horkovzdušná trouba
Vestavěná sklokeramická varná deska
Vestavěná mikrovlnná trouba
Nerezový komínový odsavač par
Vestavěná lednička
Vestavěná myčka nádobí
Velký nerezový dřez s odkapávací plochou pákovou baterií
Pracovní deska
Skleněné obkladové desky jsou k lince gratis
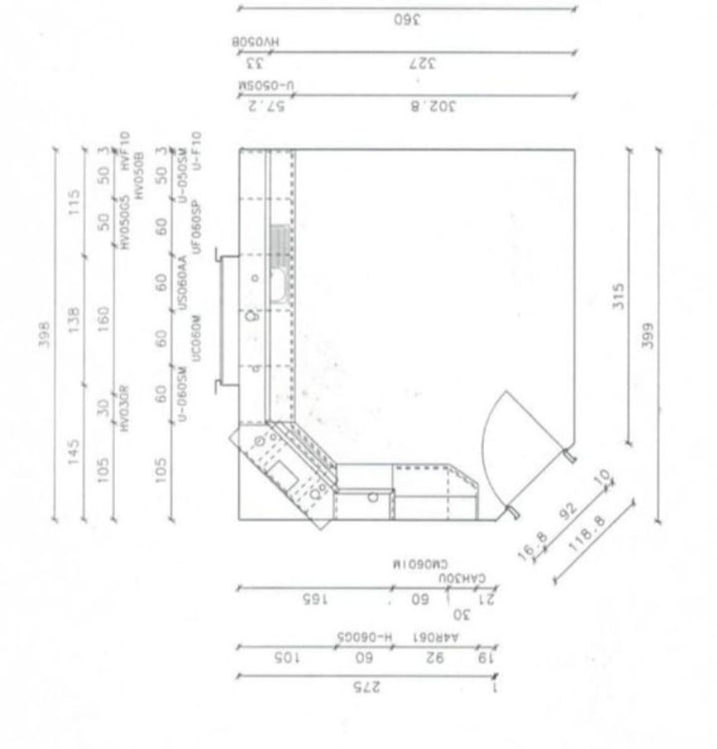
Rozměry kuchyňské linky jsou:
275cm x 398cm
( podrobněji viz. plánek )
Zboží dovezeme zdarma kamkoliv.
Kuchyni dodáváme v demontu po skříňkách, s pracovní deskou zvlášť, takže si ji můžete sestavit podle vlastních představ.
V případě zájmu možnost bezplatného uskladnění.
Možnost prodeje na splátky bez navýšení.
V ceně je zahrnuto:
Vestavěná horkovzdušná trouba
Vestavěná sklokeramická varná deska
Vestavěná mikrovlnná trouba
Nerezový komínový odsavač par
Vestavěná lednička
Vestavěná myčka nádobí
Velký nerezový dřez s odkapávací plochou pákovou baterií
Pracovní deska
Skleněné obkladové desky jsou k lince gratis
Rozměry kuchyňské linky jsou:
275cm x 398cm
( podrobněji viz. plánek )
Zboží dovezeme zdarma kamkoliv.
Kuchyni dodáváme v demontu po skříňkách, s pracovní deskou zvlášť, takže si ji můžete sestavit podle vlastních představ.
V případě zájmu možnost bezplatného uskladnění.
Možnost prodeje na splátky bez navýšení.
|
| |||||||||||||||||||||||||||||||
Kontaktovať inzerenta e-mailom
Kontaktovať e-mailom môže iba overený užívateľ.
Overenie je zadarmo.
Vaše telefónne číslo *
Kontaktovať e-mailom môže iba overený užívateľ.
Overenie je zadarmo.
Vaše telefónne číslo *
